
Manipuler votre projet en 3D !
Vous n'arrivez pas à vous projeter ? Les plans ne vous parlent pas ? Nous mettons à votre disposition un outil puissant pour visiter votre projet en 3D depuis votre ordinateur, tablette ou smartphone. Visualisez, manipulez ou visitez avec votre casque VR !

Mobilier sur mesure
Parce que chacun est différent, parce que le mobilier du commerce ne convient pas toujours : nous créons avec vous votre mobilier. Devant la 3D, nous optimisons vos espaces avec du rangement sur mesure, nous dessinons la cuisine de vos rêves ou les bibliothèques du salon.

Votre espace personnel
Retrouver l'intégralité de votre projet dans votre espace personnel: plans, 3D, planning, devis. Avec votre espace personnel, plus besoin de fouiller dans vos mails, tous vos documents sont à portée de clic. Partagez vos idées avec votre famille! C'est facile, il vous suffit de communiquer un lien vers votre projet.
Mini-Projet pour
250 euros ttc!
Offre valable sur Paris intra-muros &
sans engagement supplémentaires.
En savoir plus ...
Projet Complet
Découvrir nos services et le déroulement
d'un projet complet avec nous,
c'est par ici en suivant ce lien !
Tarifs & Devis
Consultez nos tarifs ou demander un devis
en cliquant ici.
LE DÉROULEMENT D'UN PROJET
Travailler avec un architecte c'est avant tout dialoguer. Pour organiser ce dialogue, chacun a son fonctionnement qui permet d'échanger, valider, se questionner, modifier. Chez nous, le projet se déroule pas à pas étape par étape.
Découvrez les étapes ci dessous.
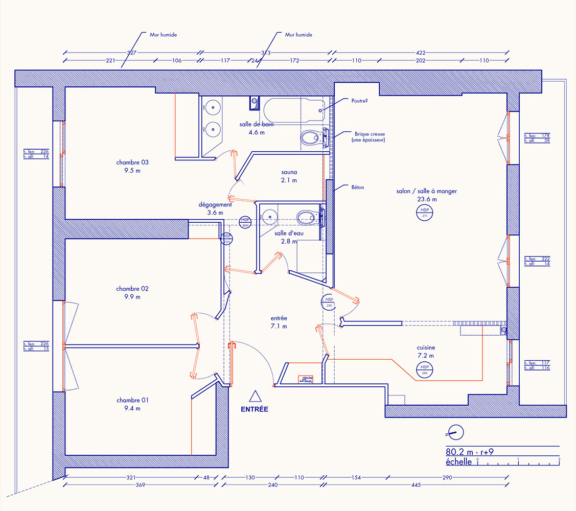
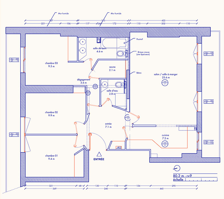
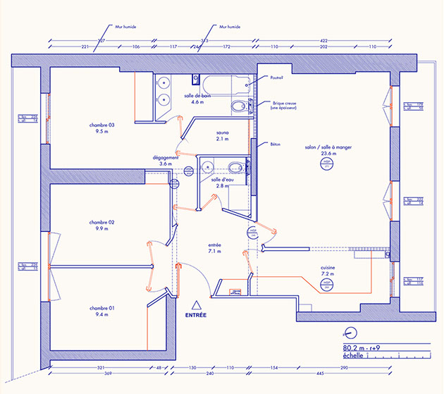
Plan de l'existant
Projet
<
2 - 2
>
APS
PHASE PLAN
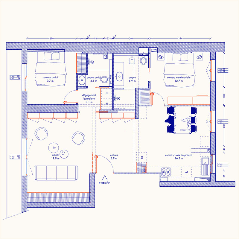
APS ou Avant Projet Sommaire, Il s’agit de la première phase d’étude qui vous permettra de vous rendre compte de ce qu’il est possible de réaliser. Après une première visite sur les lieux et un métré de l’appartement, nous réalisons une ou plusieurs propositions du projet que vous envisagez. A l’issue de cette mission nous vous remettons: un à trois projet et une estimation du coût des travaux.
Entrée2
Entrée3
Entrée4
Entrée6
Entrée5
Entrée6
<
1 - 6
>
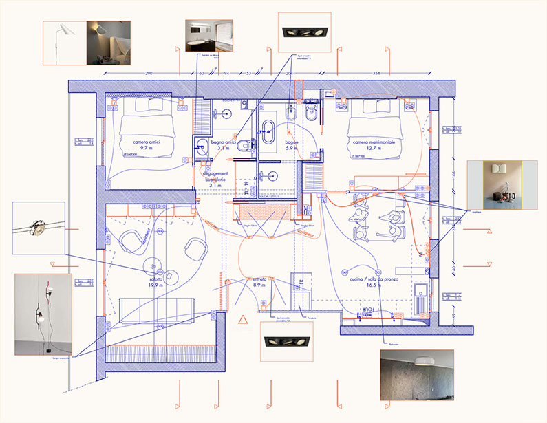
APD
PHASE DÉCORATION
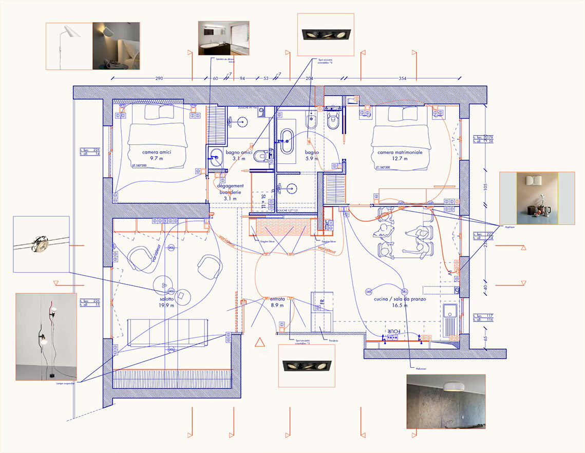
A partir du plan d’aménagement retenu à l’issue de l’APS, nous réalisation le projet de décoration. A l'aide de visuels 3D, nous travaillons les ambiances et les couleurs du projet. Nous dessinons le mobilier sur mesure que vous désirez. Nous vous proposons une liste de matériaux et produits (exemple: vasques, bacs de douche, matériaux de sol ..). Nous réalisons les plans techniques : implantation et encombrement de tous les éléments de structure et des équipements techniques ( type plomberie et électricité ). A l’issue de cette mission nous vous remettons: les plans et coupes techniques, l’estimation du coût des travaux actualisée, le cahier dressant la liste des produits & matériaux composant votre projet.
> Manipuler la 3D
> télécharger les plans de menuiserie
> télécharger le plan électrique
> télécharger la liste des produits
> télécharger l'estimation
> exemples de luminaires
DCE
DOSSIER DE CONSULTATION DES ENTREPRISES
Nous réalisons tous les documents graphiques et écrits permettant aux entreprises d’établir des devis. Nous dressons la liste des postes à chiffrer, nous rédigeons les prescriptions, nous indiquons les quantités et métrés.
Ce travail se présente sous la forme d'un dossier qui servira de contrat entre vous et l'entreprise que vous choisirez.
ACT
CONSULTATION DES ENTREPRISES
Nous rencontrons les entreprises sur le lieu du chantier pour leurs présenter le projet et répondons à toutes leurs questions. Nous procédons à l’analyse comparative des offres des entreprises, établissons un rapport et vous proposons la liste des entreprises à retenir.
DET
DIRECTION DE L’EXÉCUTION DES TRAVAUX
Nous suivons l’avancée des travaux. Nous dirigeons le chantier, organisons les réunions hebdomadaires et en rédigeons les comptes rendus que nous diffusons à tous les intéressés. Nous vérifions l’avancement des travaux et leur conformité avec les pièces du marché et résolvons toutes les difficultés qui peuvent se présenter. Nous vérifions les situations des entrepreneurs, établissons le décompte définitif en fin de chantier et proposons le règlement pour solde. Nous vous assistons pour la fin des travaux. Date à laquelle, les garanties de construction commencent. La réception des ouvrages intervient à la demande des entreprises. Nous vous assistons lors des visites pour noter, corps d’état par corps d’état, les réserves éventuelles. Nous suivons les reprises liées aux réserves jusqu’à ce que vous prononciez leurs levées ce qui constitue la date de départ des délais des responsabilités et des garanties légales.
TARIFS 2019
Pour les missions complètes
(phase plan, phase décoration, descriptifs des travaux, consultation des entreprises, suivi des travaux) Le coût de notre mission est calculé au pourcentage du coût des travaux. Le pourcentage proposé varie entre 12 et 18% suivant le coût de l'opération, la complexité, le nombre d'intervenants et prestataires connexes.
Pour les petites surfaces
Pour les petites surfaces, lorsque que le coût des travaux est inférieur à 80 000 euros ht, nous proposons un forfait.
Pour la création de mobilier sur mesure
Pour la création de mobilier sur mesure sans travaux de rénovation nous proposons un forfait.
VISITE CONSEIL
Découvrez le potentiel de votre habitat pour
250 euros ttc!
Offre valable sur Paris intra-muros &
sans engagement supplémentaires.
OFFRE VISITE CONSEIL : 250 euros ttc
offre valable sur Paris intra-muros
Découvrez le potentiel de votre habitat
ou de votre future acquisition en vous offrant une visite conseil d'Architecte !
Vous ne savez pas si votre projet est réalisable? Vous avez simplement besoin de conseils sans vous engager avec un architecte pour une mission complète: Nous proposons une visite conseil!
Sur le lieu du chantier, notre équipe est à votre disposition pour comprendre vos idées et répondre à vos questions. Après avoir visiter les lieux, nous dessinons ensemble des plans d'aménagement de votre projet.
Une fois la visite terminée, de retour à l'agence, nous réalisons une estimation détaillé du coût des travaux. L'ensemble des documents vous est remis par mail au format pdf.
Contenu de la prestation
- visite du lieu du projet & réponse aux questions 2h
- un plan sur calque réalisé à main levée pendant la visite
- une estimation détaillée du coût des travaux au format pdf, transmise par e-mail
Nb
La visite ne se substitue pas à une missions complète d'architecte. Les propositions ne peuvent faire l’objet de travaux sans relevé des ouvrages existants, sans études techniques, autorisations d’urbanisme, autorisations de copropriété. La prestation ne correspond pas à une visite ou un diagnostic technique.









APS
PHASE PLAN
APS ou Avant Projet Sommaire, Il s’agit de la première phase d’étude qui vous permettra de vous rendre compte de ce qu’il est possible de réaliser. Après une première visite sur les lieux et un métré de l’appartement, nous réalisons une ou plusieurs propositions du projet que vous envisagez. A l’issue de cette mission nous vous remettons: un à trois projets et une estimation du coût des travaux.
Plan de l'existant
Projet
<
2 - 2
>
APD
PHASE DÉCORATION
A partir du plan d’aménagement retenu à l’issue de l’APS, nous réalisation le projet de décoration. A l'aide de visuels 3D, nous travaillons les ambiances et les couleurs du projet. Nous dessinons le mobilier sur mesure que vous désirez. Nous vous proposons une liste de matériaux et produits (exemple: vasques, bacs de douche, matériaux de sol ..). Nous réalisons les plans techniques : implantation et encombrement de tous les éléments de structure et des équipements techniques ( type plomberie et électricité ). A l’issue de cette mission nous vous remettons: les plans et coupes techniques, l’estimation du coût des travaux actualisée, le cahier dressant la liste des produits & matériaux composant votre projet.
Entrée2
Entrée3
Entrée4
Entrée6
Entrée5
Entrée6
<
1 - 6
>
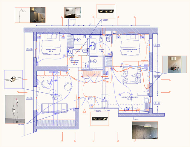
> Manipuler la 3D
> télécharger les plans de menuiserie
> télécharger le plan électrique
> exemples de luminaires
> télécharger la liste des produits
> télécharger l'estimation
DCE
DOSSIER DE CONSULTATION DES ENTREPRISES
Nous réalisons tous les documents graphiques et écrits permettant aux entreprises d’établir des devis. Nous dressons la liste des postes à chiffrer, nous rédigeons les prescriptions, nous indiquons les quantités et métrés.
Ce travail se présente sous la forme d'un dossier qui servira de contrat entre vous et l'entreprise que vous choisirez.
ACT
CONSULTATION DES ENTREPRISES
Nous rencontrons les entreprises sur place pour leurs présenter le projet et répondons à toutes leurs questions. Nous procédons à l’analyse comparative des offres, établissons un rapport et vous proposons la liste des entreprises à retenir.
DET
DIRECTION DE L’EXÉCUTION DES TRAVAUX
Nous suivons l’avancée des travaux. Nous dirigeons le chantier, organisons les réunions hebdomadaires et en rédigeons les comptes rendus que nous diffusons à tous les intéressés. Nous vérifions l’avancement des travaux et leur conformité avec les pièces du marché et résolvons toutes les difficultés qui peuvent se présenter. Nous vérifions les situations des entrepreneurs, établissons le décompte définitif en fin de chantier et proposons le règlement pour solde. Nous vous assistons pour la fin des travaux. Date à laquelle, les garanties de construction commencent. La réception des ouvrages intervient à la demande des entreprises. Nous vous assistons lors des visites pour noter, corps d’état par corps d’état, les réserves éventuelles. Nous suivons les reprises liées aux réserves jusqu’à ce que vous prononciez leurs levées ce qui constitue la date de départ des délais des responsabilités et des garanties légales.